Shophouse The Beverly Solari tọa lạc tại vị trí đắc địa, được quy hoạch khoa học, thiết kế sang trọng đã ghi điểm tuyệt đối trong mắt các nhà đầu tư thông thái. Cùng tìm hiểu những thông tin mới nhất về sản phẩm này qua bài viết dưới đây.
Giới thiệu về Shophouse The Beverly Solari
The Beverly Solari là khu cao tầng mở rộng từ phân khu The Beverly, lấy cảm hứng từ thành phố Beverly Hills nổi tiếng lối sống thời thượng, xa hoa dành cho giới tinh anh, giàu có. The Beverly Solari được phát triển với hình ảnh chim đại bàng hùng mạnh, mở ra trải nghiệm sống “luxury sky-living” sang trọng chuẩn quốc tế.
The Beverly Solari là phân khu căn hộ sang trọng thuộc khu đô thị Vinhomes Grand Park, gồm 13 tòa nhà với chiều cao từ 24 – 30 tầng. Phân khu là sự hợp tác chiến lược giữa tập đoàn Mitsubishi Nhật Bản và thương hiệu Vinhomes Việt Nam. The Beverly Solari được khởi công bắt đầu từ năm 2021 và thời gian bàn giao dự kiến vào năm 2023.
Giống như nhiều tòa cao tầng khác trong dự án, 13 tóa The Beverly Solari cung cấp ra thị trường đa dạng loại hình sản phẩm, bao gồm: shophouse chân đế, căn hộ hiện đại (căn studio, căn 1PN – 3PN). Trong đó, shophouse The Beverly Solari là loại hình phục vụ cho mục đích kinh doanh của chủ nhân, được bố trí tại tầng 1 (hay còn gọi là khối đế) của các tòa nhà tại phân khu The Beverly Solari. Shophouse sở hữu diện tích linh hoạt, dao động trong khoảng từ 35m2 – 112m2, được thiết kế khoa học, tạo thuận lợi tối đa cho các hoạt động kinh doanh của chủ nhân.
Ngoài ra, giữa 2 tiểu khu The Resort và The Star của phân khu The Beverly Solari, chủ đầu tư xây dựng bãi đỗ xe rộng lớn nhằm thuận tiện cho du khách đến mua sắm. Sở hữu các căn shophouse The Beverly Solari, chủ nhân sẽ có được nguồn khách hàng tiềm năng lớn đến từ 20.000 cư dân sinh sống tại hơn 5.000 căn hộ tại tòa tháp The Beverly Solari.

- CREATOR: gd-jpeg v1.0 (using IJG JPEG v62), quality = 82
Giới thiệu về Shophouse The Beverly Solari
Thêm vào đó, cư dân tại The Beverly Solari thuộc nhóm thượng lưu, giàu có với mức tài chính tốt nên sức mua và nhu cầu sở hữu các sản phẩm cao cấp lớn, lựa chọn kinh doanh các sản phẩm cao cấp tại đây là phương án tuyệt vời cho các nhà đầu tư tinh anh.
Bên cạnh đó, khách hàng có thể mua đồng thời shophouse khối đế tại tầng 1 và căn hộ tại tầng 2 để gia tăng diện tích sử dụng, kết hợp 2 mục đích để kinh doanh và ở.
Vị trí Shophouse The Beverly Solari
Shophouse The Beverly Solari nằm ở chân đế các tòa cao tầng thuộc phân khu The Beverly Solari, nhờ vậy sản phẩm thừa hưởng được lợi thế vị trí đắc địa của phân khu. The Beverly Solari sở hữu tọa độ “vàng” tại trung tâm khu đô thị Vinhomes Grand Park, là phân khu hiếm hoi tiếp giáp cả 2 tuyến đường chiến lược Vành Đai 3 và Phước Thiện.

Vị trí Shophouse The Beverly Solari
Ngoài ra, phân khu còn tiếp giáp cụm trường học theo tiêu chuẩn quốc tế và công viên nội khu. Lợi thế về vị trí kết nối linh hoạt giúp cư dân sinh sống tại The Beverly Solari trải nghiệm được trọn vẹn không gian sống với những tiện ích đẳng cấp. Đặc biệt, phân khu được đánh giá cao nhờ địa thế phong thủy đẹp với 2 mặt giáp sông Tắc và sông Đồng Nai.
Các mặt tiếp giáp chi tiết của phân khu như sau:
- Phía Đông: giáp phân khu The Beverly, trường học Vinschool
- Phía Bắc: giáp đường Phước Thiện
- Phía Tây: kết nối với đường Vành Đai 3, liền kề Vincom, công viên trung tâm
- Phía Nam: giáp khu căn hộ Masteri Centre Point
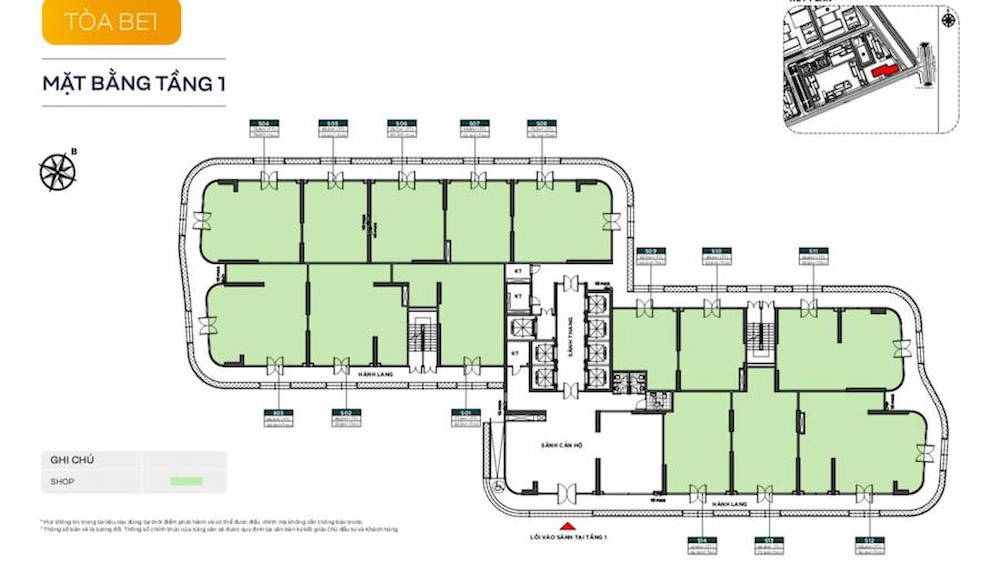
Mặt bằng thiết kế Shophouse The Beverly Solari
Các tòa căn hộ tại The Beverly được thiết kế mặt bằng theo layout hình chữ T, Z, U với mật độ xây dựng thấp. Shophouse chân đế The Beverly Solari được phát triển với diện tích linh hoạt cùng mức giá hợp lý, chủ nhân có thể kinh doanh nhiều mặt hàng như: vui chơi – giải trí, ăn uống, dịch vụ,…

Shophouse The Beverly Solari – sơ đồ mặt bằng công bố bởi CĐT
Ưu điểm của Shophouse The Beverly Solari
Mang thương hiệu Vinhomes, Shophouse chân đế The Beverly Solari lọt vào “tầm ngắm” của những nhà đầu tư thông thái ngay từ khi ra mắt bởi sở hữu nhiều ưu điểm vượt trội về vị trí, tiềm năng kinh doanh, giá trị gia tăng, cụ thể:
Shophouse The Beverly Solari nằm tại vị trí đắc địa trung tâm Thành phố công viên, liền kề trung tâm thương mại Vincom Mega Mall và nút giao của 4 tuyến đường lớn. Bởi vậy, chủ nhân các sản phẩm thừa hưởng nguồn khách chủ động đến từ hệ sinh thái “all-in-one” của khu đô thị Vinhomes Grand Park với công viên Grand Forest quy mô 36ha hàng đầu Đông Nam Á và “tứ trụ kim cương” Vincom – Vinmec –Vinhomes – Vinschool.
Shophouse The Beverly Solari được phát triển với số lượng hữu hạn tại chân đế các tòa tháp, sở hữu hàng trăm ngàn khách hàng tiềm năng là cộng đồng cư dân sinh sống tại phân khu The Beverly Solari và các khu căn hộ xung quanh. Shophouse ghi điểm tuyệt đối trong mắt các nhà đầu tư nhạy bén, vì vậy, khách hàng có thể sẽ phải cạnh tranh cao để mua được sản phẩm này.
Có thể nói, Shophouse The Beverly Solari với lợi thế vị trí đắc địa tại trung tâm Thành phố công viên, đi kèm nguồn khách hàng lớn cùng các tiện ích đẳng cấp, đây là phương án đầu tư lý tưởng cho những khách hàng nhạy bén.
* Hình ảnh trong bài viết mang tính minh hoạ. Việc vận hành khu đô thị theo quy định của Ban Quản lý tại từng thời điểm.
* Tài liệu/bản vẽ mang tính chất tham khảo và sẽ được Chủ đầu tư cập nhật, điều chỉnh tại mỗi thời điểm cho từng khu vực để đảm bảo tối ưu các tiện ích sử dụng và phù hợp với thiết kế tổng thể của Dự án.




Bài viết liên quan:
Masterise Homes khởi công 600m đường Liên Phường nối liền khu Đông TP.HCM
Th12
Sự kiện khai phố mở hội ở The Global City thu hút gần 20.000 khán giả tham dự
Th12
Căn hộ Masteri Grand View The Global City hưởng lợi từ vị trí chiến lược tại Khu Đông
Th12
Giá bán Empire City bao nhiêu? Cập nhật 2024
Th11
Dự án căn hộ chung cư Palm Heights quận 2
Th11
Diamond Island có phải là sự lựa chọn tốt nhất để nghỉ dưỡng
Th11